Overview
This captivating villa is part of a tranquil residential area in Osnice, in the vicinity of Průhonice Park. The capital city of Prague is a 25 minute drive from the villa to the city centre.
The property sits on a 6,725 sqm plot of land with picturesque and serene landscapes.
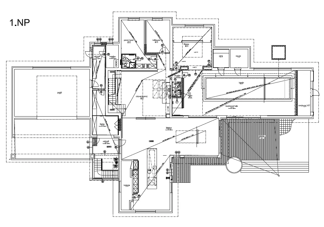
Once you make your way through the entrance hall, one is greeted with a large open space, combined living room, dining room and kitchen. Everything is decorated in timeless modern design and flooded with daylight thanks to glass walls facing south-west and views of the garden and the adjacent park. Relaxation is provided by an indoor heated swimming pool, an infra sauna, separate steam sauna, and a fitness room.
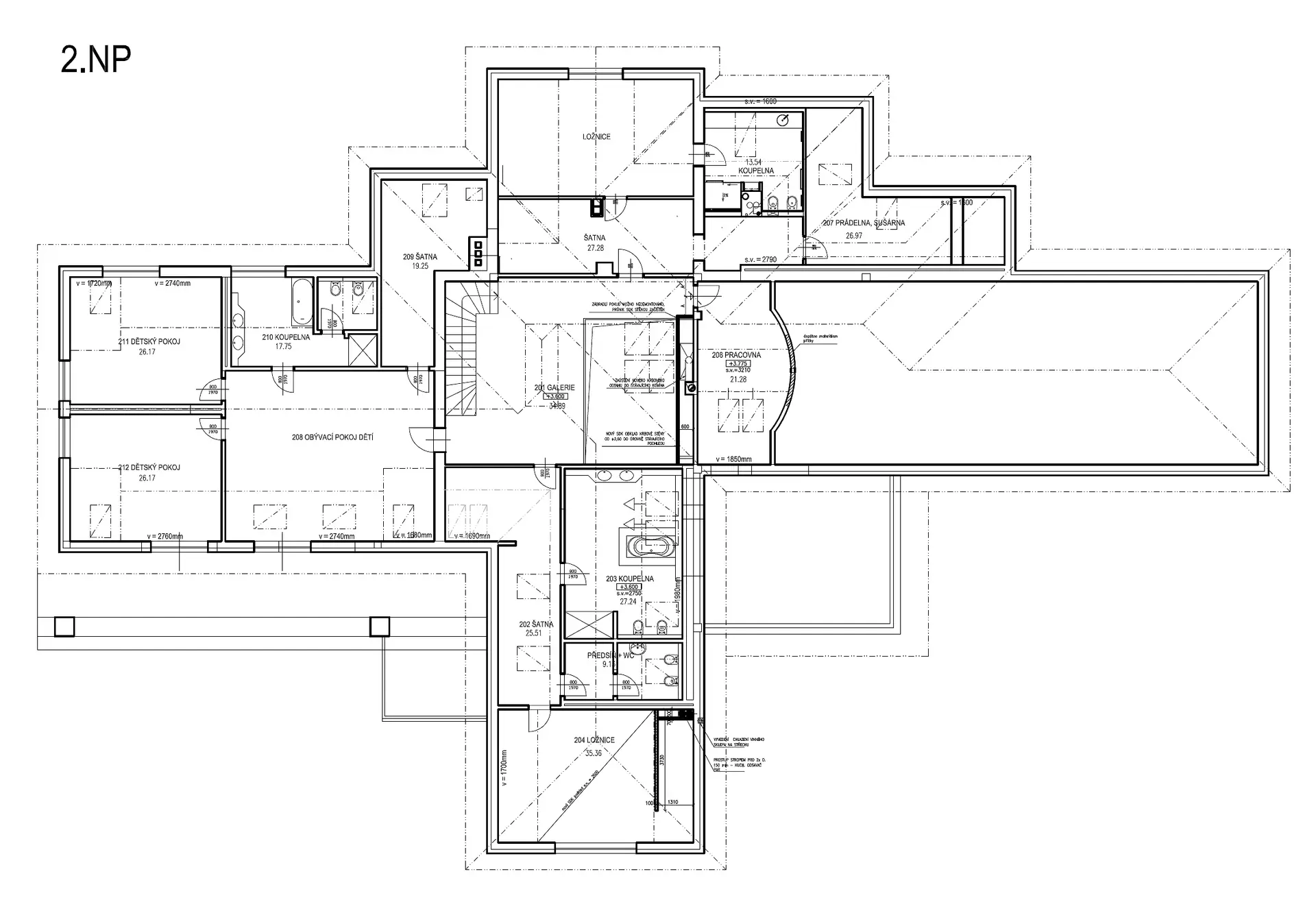
There is also a guest room, a library, a fitness area, a bathroom, two separate toilets and a boiler-room. The first floor offers an open gallery, two bedrooms (perfect for his and hers, each w/ their own wardrobe and en-suite bathroom), two children’s bedrooms with a joint playroom and a bathroom, a study room, storage room and a laundry room with dryer.
Equipment includes wood floating floors (cherry-tree and bleached oak), ceramic large-format Apavisa and Zebrano tiling, aluminium two-glass windows, fully equipped SieMatic kitchen with Miele and Gaggenau appliances. A heat-pump (air-to-air) is used for the swimming pool, ceiling cooling in the whole ground floor (and in the bedroom “for him” on the second floor as well), distribution is prepared for the whole house. Floor heating in the whole house, gas boiler, heated swimming pool with UV lamps and ionization. There is also a well with a retention tank in the garden for its irrigation. Security is provided by safety blinds and security service.
Three car garage.
The residence also includes a 120 sqm guesthouse.
The Sunny Canadian International school is just 1,1 km away.
Prague British School 13 km
- Status Available
- Area 6,725 m2
- Location Central, Bohemia
- Type Villa
- Price150,000,000.00 Kč
- Size1080 m2
Amenities
Surrounded by lush greenery located in central Bohemia.
Surveillance System
Children's play area
24x7 Security
Landscape Garden
Firefighting System
AC Community Hall
Swimming Pool
Fitness Center
Location
Address
Key transport
- Coast: 300m
- Supermarket: 200m
- Airport: 2,790m
- Hospital: 500m
- Park: 1,500m
- State Bank: 190m
- Railway Station: 1,800m
- University: 250m
- Bus Station: 150m
Enquiry
Wish to get a call back from our team? Fill in your details.


